Việc xây dựng nhà đẹp Quy Nhơn theo yêu cầu cá nhân hóa từng không gian sống gia đình bạn ngày càng trở nên quan trọng trong bối cảnh nhu cầu sống hiện đại được nâng cao.
Nhiều chủ đầu tư hiện nay mong muốn ngôi nhà của mình không chỉ là nơi ở mà còn là không gian thể hiện phong cách sống và gu thẩm mỹ riêng.
Qua đó, giải pháp xây dựng nhà đẹp tại Quy Nhơn được đề xuất với các tiêu chí về chất lượng, tiện ích và cá nhân hóa, nhằm tạo ra tổ ấm lý tưởng phù hợp với từng thành viên trong gia đình.
Mời mọi người xem thêm bài viết về: Bộ sưu tập mẫu nhà xây nhà trọn gói Quy Nhơn từ 1 tầng đến 3 tầng đẹp vượt thời gian
Xây dựng nhà đẹp Quy Nhơn theo yêu cầu cá nhân hóa từng không gian sống gia đình bạn là gì?

Xây dựng nhà đẹp Quy Nhơn theo yêu cầu cá nhân hóa từng không gian sống gia đình bạn là hình thức thiết kế và thi công nhà ở dựa trên nhu cầu thực tế của gia chủ.
Không giống như các dự án xây dựng theo mẫu nhà chung chung, phương pháp này chú trọng vào việc phát huy tối đa công năng của từng không gian sống, tạo dựng nên nét riêng biệt và độc đáo cho mỗi gia đình.
Mỗi căn nhà được xây dựng dựa trên sở thích, thói quen sinh hoạt và điều kiện vật chất cụ thể của chủ nhà, đảm bảo không gian sống được tối ưu và hài hòa theo thời gian.
Áp dụng phương pháp cá nhân hóa không chỉ giúp gia chủ thoải mái trong quá trình sử dụng mà còn tạo ra các giải pháp tiết kiệm chi phí, tránh tình trạng lãng phí vật liệu xây dựng.
Quan trọng hơn, việc xây dựng nhà đẹp Quy Nhơn theo yêu cầu cá nhân hóa từng không gian sống gia đình bạn giúp nâng cao giá trị bất động sản theo thời gian.
Các yếu tố đặc trưng của xây dựng nhà đẹp Quy Nhơn theo yêu cầu cá nhân hóa bao gồm:
- Không gian thiết kế đo ni đóng giày cho từng thành viên
- Công năng sử dụng phù hợp với thói quen sinh hoạt
- Yếu tố thẩm mỹ mang dấu ấn riêng.
Vì sao xây dựng nhà đẹp Quy Nhơn theo yêu cầu cá nhân hóa từng không gian sống gia đình bạn là xu hướng tất yếu?

1. Gia đình Việt ngày càng chú trọng chất lượng sống
Ngày nay, không gian sống của mỗi gia đình không chỉ đơn thuần là mái ấm để ở mà còn là nơi thể hiện lối sống, khẳng định cá tính và gắn kết các thế hệ.
Các chủ đầu tư đã nhận ra rằng chất lượng sống đóng vai trò quyết định trong việc tạo dựng một gia đình hạnh phúc và bền vững.
Khi xây dựng nhà đẹp Quy Nhơn theo yêu cầu cá nhân hóa từng không gian sống gia đình bạn, các yếu tố như phòng khách hiện đại, bếp mở tiện nghi và phòng ngủ riêng biệt được tối ưu hóa theo nhu cầu thực tế.
Việc sống trong môi trường được bố trí khoa học giúp gia đình cảm thấy thoải mái, giảm căng thẳng và tăng cường tình cảm giữa các thành viên.
Lời khuyên về thiết kế không gian sống hiện đại thường được các chuyên gia khuyến cáo khi bắt đầu bất cứ dự án xây dựng nào.
2. Tối ưu diện tích – đặc biệt phù hợp với nhà phố Quy Nhơn

Đặc trưng của nhà ở tại Quy Nhơn là diện tích đất hạn chế, khiến cho mô hình nhà phố và nhà ống chiếm ưu thế.
Nhiều gia đình gặp khó khăn khi không tận dụng được tối đa không gian do thiết kế không phù hợp với thổ nhưỡng và diện tích có hạn.
Việc xây dựng nhà đẹp Quy Nhơn theo yêu cầu cá nhân hóa từng không gian sống gia đình bạn giúp bố trí các không gian như phòng khách, phòng ngủ, và khu vực bếp ăn một cách hợp lý.
Qua đó, giảm thiểu hiện tượng không gian dư thừa ở một số khu vực và thiếu đi những không gian cần thiết cho sinh hoạt hàng ngày.
Mẹo tối ưu không gian trong nhà phố là một trong những nội dung được trao đổi nhiều trong quá trình thiết kế.
3. Kiểm soát chi phí xây dựng hiệu quả hơn

Khi lựa chọn xây dựng nhà đẹp Quy Nhơn theo yêu cầu cá nhân hóa từng không gian sống gia đình bạn, việc kiểm soát chi phí xây dựng trở nên rõ ràng hơn.
Bằng cách tư vấn và khảo sát kỹ lưỡng từ giai đoạn đầu, các chi phí phát sinh được dự trù một cách hợp lý và minh bạch.
Điều này giúp gia chủ tránh khỏi tình trạng “xây xong mới thấy chưa hợp” và từ đó tiết kiệm được ngân sách xây dựng.
Sự can đảm trong việc đầu tư ban đầu vào thiết kế cá nhân hóa chính là yếu tố then chốt để kiểm soát chi phí lâu dài.
Hướng dẫn quản lý ngân sách xây dựng luôn là công cụ hữu ích đối với các nhà đầu tư thông minh.
Xây dựng nhà đẹp Quy Nhơn theo yêu cầu cá nhân hóa từng không gian sống gia đình bạn gồm những hạng mục nào?

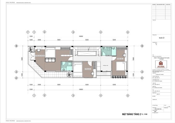
1. Cá nhân hóa mặt bằng công năng

Khi tiến hành xây dựng nhà đẹp Quy Nhơn theo yêu cầu cá nhân hóa từng không gian sống gia đình bạn, hạng mục mặt bằng công năng được ưu tiên hàng đầu.
Mỗi gia đình có nhu cầu sử dụng không gian khác nhau:
- Gia đình trẻ ưu tiên không gian sinh hoạt chung tiện lợi.
- Gia đình nhiều thế hệ cần phòng ngủ riêng biệt.
- Gia đình kết hợp kinh doanh muốn tối ưu mặt tiền và công năng linh hoạt.
Việc cá nhân hóa mặt bằng giúp tối ưu hóa các khu vực sinh hoạt, đảm bảo ngôi nhà trở nên bền vững và thực tiễn theo thời gian.
Kinh nghiệm tạo ra không gian sống tối ưu là một tham khảo quý giá trong quá trình thiết kế này.
2. Cá nhân hóa phong cách kiến trúc
![]() |
![]() |
Khi nói đến xây dựng nhà đẹp Quy Nhơn theo yêu cầu cá nhân hóa từng không gian sống gia đình bạn, yếu tố phong cách kiến trúc cũng đóng vai trò quan trọng.
Các phong cách được áp dụng bao gồm:
- Phong cách hiện đại – tối giản với đường nét sạch sẽ.
- Phong cách tân cổ điển mang đến sự sang trọng.
- Phong cách nhà phố kết hợp yếu tố xanh, tạo sự thông thoáng và gần gũi với thiên nhiên.
Mỗi phong cách đều được lựa chọn dựa vào sở thích, tuổi tác, và khả năng tài chính của gia chủ.
Lựa chọn phong cách kiến trúc phù hợp giúp nhà ở không chỉ kiểu dáng bắt mắt mà còn tạo cảm giác ấm cúng và tiện nghi.
3. Cá nhân hóa vật liệu và giải pháp kỹ thuật

Không chỉ dừng lại ở thiết kế hình thức, xây dựng nhà đẹp Quy Nhơn theo yêu cầu cá nhân hóa từng không gian sống gia đình bạn còn chú trọng đến chất lượng vật liệu và giải pháp kỹ thuật.
Một ngôi nhà đẹp thực sự cần có:
- Chất lượng kết cấu bền vững theo thời gian.
- Giải pháp chống nóng, chống ẩm và tối ưu ánh sáng tự nhiên.
- Vật liệu phù hợp với khí hậu miền Trung.
Việc lựa chọn vật liệu hợp chất lượng giúp giảm thiểu chi phí bảo trì và tăng tuổi thọ của công trình. Tư vấn về vật liệu xây dựng bền vững là một trong những chủ đề được các chuyên gia luôn cập nhật.
Quy trình xây dựng nhà đẹp Quy Nhơn theo yêu cầu cá nhân hóa từng không gian sống gia đình bạn

Bước 1: Lắng nghe và khảo sát thực tế mặt bằng hiện trạng công trình xây dựng nhà phố

Một quy trình xây dựng nhà đẹp Quy Nhơn theo yêu cầu cá nhân hóa từng không gian sống gia đình bạn luôn bắt đầu từ việc lắng nghe và khảo sát hiện trạng thực tế của khu đất.
Quá trình này bao gồm:
- Trao đổi chi tiết nhu cầu và mong muốn của gia chủ.
- Khảo sát hiện trạng đất nhằm hiểu rõ điều kiện tự nhiên.
- Phân tích ưu và nhược điểm của khu vực.
Việc khảo sát kỹ lưỡng giúp định hướng thiết kế một cách chính xác và hiệu quả, đảm bảo các giải pháp được triển khai khâu chặt chẽ từ đầu.
Quy trình khảo sát địa chất và thẩm định mang lại sự an tâm cho những chủ đầu tư khó tính.
Bước 2: Thiết kế cá nhân hóa chi tiết

Sau giai đoạn khảo sát, bước tiếp theo là thiết kế cá nhân hóa chi tiết. Bản vẽ không những cần đáp ứng các yêu cầu về mặt thẩm mỹ mà còn phải:
- Dễ dàng thi công và hiện thực hóa.
- Phù hợp với sinh hoạt lâu dài của gia đình.
- Có dự trù chi phí rõ ràng, minh bạch.
Đây là nền tảng để xây dựng nhà đẹp Quy Nhơn theo yêu cầu cá nhân hóa từng không gian sống gia đình bạn thành công, tránh các phát sinh không cần thiết sau này.
Hướng dẫn thiết kế nhà ở theo tiêu chuẩn cung cấp các giải pháp sáng tạo trong việc ứng dụng không gian.
Bước 3: Thi công đúng bản vẽ – đúng cam kết xây dựng nhà đẹp Quy Nhơn
![]() |
![]() |
Giai đoạn thi công là bước quyết định chất lượng và độ bền của ngôi nhà. Việc xây dựng nhà đẹp Quy Nhơn theo yêu cầu cá nhân hóa từng không gian sống gia đình bạn cần thực hiện theo đúng bản vẽ và cam kết của đơn vị thiết kế.
Các tiêu chí trong quá trình thi công bao gồm:
- Sử dụng kỹ thuật thi công hiện đại, đảm bảo an toàn.
- Lựa chọn vật liệu đúng với tiêu chuẩn đã đề ra.
- Giám sát tiến độ thi công chặt chẽ theo từng hạng mục.
Tính minh bạch và chuyên nghiệp trong công tác thi công là yếu tố then chốt tạo nên niềm tin cho gia chủ.
Kinh nghiệm thi công nhà ở chất lượng cao đã chứng minh được hiệu quả của mô hình thiết kế cá nhân hóa.
Lợi ích lâu dài khi xây dựng nhà đẹp Quy Nhơn theo yêu cầu cá nhân hóa từng không gian sống gia đình bạn

Việc đầu tư xây dựng nhà đẹp Quy Nhơn theo yêu cầu cá nhân hóa từng không gian sống gia đình bạn mang lại nhiều lợi ích lâu dài cho chủ đầu tư.
Không gian sống tiện nghi và được bố trí hợp lý giúp gia đình có thể tận hưởng cuộc sống một cách trọn vẹn, đồng thời ngôi nhà còn có khả năng:
- Tăng giá trị bất động sản theo thời gian.
- Giảm thiểu chi phí sửa chữa và cải tạo sau này.
- Tạo nên sự liên kết và gắn kết giữa các thành viên.
- Đáp ứng mọi nhu cầu sinh hoạt một cách toàn diện.
Khi sở hữu một ngôi nhà được thiết kế và thi công theo yêu cầu cá nhân, gia chủ sẽ luôn cảm thấy tự hào và thoải mái.
Lợi ích đầu tư xây dựng nhà thông minh là minh chứng cho sự đầu tư đúng đắn cho tương lai.
Xây dựng nhà đẹp Quy Nhơn – Đầu tư cho tổ ấm, đầu tư cho tương lai

Trong bối cảnh thị trường bất động sản ngày càng cạnh tranh, xây dựng nhà đẹp Quy Nhơn theo yêu cầu cá nhân hóa từng không gian sống gia đình bạn chính là giải pháp tối ưu cho những ai mong muốn tạo dựng một tổ ấm sống lý tưởng.
Một ngôi nhà đẹp không chỉ là nơi định cư, mà còn là biểu tượng cho sự đầu tư bền vững và giá trị gia tăng theo thời gian.
Khi lựa chọn áp dụng phương pháp xây dựng cá nhân hóa, mỗi chi tiết nhỏ của ngôi nhà được chăm chút tỉ mỉ, từ bố trí không gian cho đến lựa chọn vật liệu xây dựng.
Điều này không những giúp nâng cao chất lượng sống mà còn tạo ra một tác phẩm kiến trúc mang đậm dấu ấn cá nhân.
Tư vấn đầu tư bất động sản thông minh luôn khẳng định rằng đầu tư vào ngôi nhà được cá nhân hóa sẽ gặt hái được nhiều thành quả tích cực.
Qua quá trình từ khảo sát, thiết kế đến thi công và hoàn thiện, xây dựng nhà đẹp Quy Nhơn theo yêu cầu cá nhân hóa từng không gian sống gia đình bạn đã chứng minh được sự khác biệt so với các mẫu nhà chung chung hiện nay.
Đầu tư cho tổ ấm chính là đầu tư cho tương lai, giúp gia đình hướng đến một cuộc sống trọn vẹn hơn, an tâm hơn và phát triển bền vững theo thời gian.
Với tất cả những lý do trên, không có gì ngạc nhiên khi xây dựng nhà đẹp Quy Nhơn theo yêu cầu cá nhân hóa từng không gian sống gia đình bạn đang trở thành xu hướng tất yếu đối với các chủ đầu tư hiện đại.
Nếu bạn mong muốn biến ước mơ về một mái ấm độc đáo thành hiện thực, hãy bắt đầu từ những bước chuẩn bị cơ bản nhất và đồng hành cùng các chuyên gia uy tín.
Cơ hội tạo dựng tổ ấm lý tưởng ngay hôm nay chính là lời mời gọi cho những ai khát khao một cuộc sống tốt đẹp hơn.
Mọi Thông Tin Liên Hệ: HOTLINE: 0987. 374. 752 ( Anh Thanh)
CÔNG TY TNHH THIẾT KẾ VÀ XÂY DỰNG HẢI HƯNG





