Trong quá trình thực hiện dự án xây nhà trọn gói Quy Nhơn, việc tìm hiểu kỹ lưỡng các hồ sơ thiết kế là bước khởi đầu quan trọng giúp gia chủ nắm bắt được toàn bộ quy trình từ ý tưởng đến hiện thực.
Nhiều gia chủ đã nhận ra rằng hiểu rõ quy trình xây dựng chuyên nghiệp tại Quy Nhơn là yếu tố quyết định sự thành công của dự án.
Bài viết này sẽ cung cấp cho bạn một cái nhìn tổng quát về hồ sơ thiết kế khi xây nhà trọn gói Quy Nhơn, giúp bạn hiểu đúng, làm đúng và tiết kiệm chi phí ngay từ ban đầu.
Hồ sơ thiết kế khi xây nhà trọn gói Quy Nhơn gồm những gì?

Các hồ sơ thiết kế không chỉ đơn giản là những bản vẽ để tham khảo mà còn là công cụ quản lý dự án giúp bạn kiểm soát công trình một cách chuyên nghiệp.
Việc chuẩn bị đầy đủ hồ sơ thiết kế khi xây nhà trọn gói Quy Nhơn đảm bảo rằng mọi công đoạn từ thi công đến hoàn thiện đều diễn ra suôn sẻ và đạt tiêu chuẩn an toàn cũng như chất lượng.
Trong bài viết này, dưới sự dẫn dắt của những nguyên tắc xây dựng bền vững, chúng tôi sẽ chia sẻ từng phần chi tiết của hồ sơ thiết kế xây nhà trọn gói Quy Nhơn.
Bạn có thể tham khảo thêm về chiến lược phát triển dự án với nguồn cảm hứng từ các chuyên gia hàng đầu để tăng tính chuyên nghiệp cho dự án của mình.
Vì sao phải hiểu rõ hồ sơ thiết kế khi xây nhà trọn gói Quy Nhơn gồm những gì?

Khi lựa chọn dịch vụ xây nhà trọn gói Quy Nhơn, hồ sơ thiết kế đóng vai trò như chiếc chìa khóa mở ra hiển thị toàn bộ ý tưởng và kỹ thuật thi công của công trình.
Việc hiểu rõ các hồ sơ này nhằm mục tiêu:
- Xác định khối lượng và dự toán chi phí chính xác.
- Căn cứ thi công theo đúng tiến độ và kỹ thuật.
- Giúp gia chủ nắm bắt được cấu trúc và năng lực chịu lực của ngôi nhà.
- Tránh các phát sinh vô lý và tranh chấp sau này.
Một bộ hồ sơ thiết kế chi tiết là sự minh bạch và cam kết giữa gia chủ và nhà thầu.
Việc này được hỗ trợ bởi các dữ liệu kỹ thuật hiện đại và phương pháp tính toán tiên tiến, như phương pháp ước tính chi phí xây dựng chuẩn quốc tế, giúp bạn an tâm về chất lượng dự án khi lựa chọn xây nhà trọn gói Quy Nhơn.
Phần kiến trúc của hồ sơ thiết kế xây nhà trọn gói Quy Nhơn

Phần kiến trúc là yếu tố được gia chủ quan tâm nhiều nhất bởi chính nó định hình thẩm mỹ và công năng sử dụng của ngôi nhà. Việc chuẩn bị hồ sơ thiết kế kiến trúc khi xây nhà trọn gói Quy Nhơn bao gồm một số bản vẽ cần thiết:
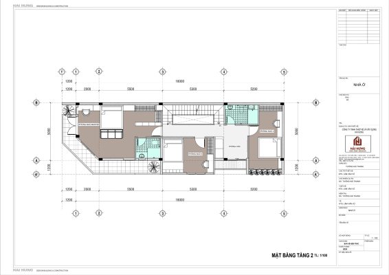
Bản vẽ mặt bằng công năng thiết kế

Bản vẽ mặt bằng công năng là tài liệu cơ bản thể hiện bố trí không gian sử dụng của các phòng như khách, bếp, phòng ngủ và WC. Nội dung của bản vẽ này bao gồm:
- Mặt bằng từng tầng chi tiết.
- Bố trí các khu vực chức năng hợp lý.
- Diện tích sử dụng được tính toán chính xác.
Đây thực chất là ” phương pháp phân chia không gian thông minh ” giúp bạn hình dung rõ ràng cấu trúc của ngôi nhà và từ đó có những điều chỉnh phù hợp theo nhu cầu sử dụng.
Bản vẽ mặt đứng – mặt cắt
Bản vẽ mặt đứng và mặt cắt thể hiện hình dạng tổng thể, tỷ lệ và chiều cao của ngôi nhà. Nội dung này giúp:
- Phác họa kiểu dáng tổng thể của công trình.
- Xác định phong cách kiến trúc (hiện đại, tân cổ điển, …).
- Cung cấp thông tin về các chi tiết kết cấu ngoại thất.
Việc sử dụng các bản vẽ kỹ thuật hiện đại giúp gia chủ có cái nhìn toàn diện và chính xác về thiết kế, đảm bảo rằng kết quả xây dựng khi hoàn thành sẽ đúng như mong đợi.
Phối cảnh 3D ngoại thất

Phối cảnh 3D ngoại thất mang đến một trải nghiệm thị giác sống động cho dự án. Thông qua những hình ảnh 3D, bạn có thể:
- Hình dung được màu sắc và kiến trúc tổng thể của ngôi nhà.
- So sánh và lựa chọn phong cách thiết kế phù hợp.
- Giảm thiểu những sai lệch giữa thiết kế và thực tế thi công.
Hãy tham khảo ngay giải pháp phối cảnh 3D sáng tạo để đảm bảo rằng ý tưởng thiết kế của bạn được truyền tải một cách trung thực và sắc nét.
Phần kết cấu trong hồ sơ thiết kế khi xây nhà trọn gói Quy Nhơn

Phần kết cấu là nền tảng đảm bảo tính an toàn và độ bền của công trình. Một bản vẽ kết cấu chi tiết sẽ giúp gia chủ kiểm soát rủi ro xây dựng và tối ưu hóa chi phí xây dựng.
Các yếu tố chính trong hồ sơ kết cấu bao gồm:
Bản vẽ móng của hồ sơ thiết kế xây nhà trọn gói Quy Nhơn
Bản vẽ móng là tài liệu thể hiện cách bố trí và kiểu móng được sử dụng cho công trình. Đây là yếu tố quyết định sự ổn định của ngôi nhà. Điểm nổi bật của bản vẽ móng khi xây nhà trọn gói Quy Nhơn bao gồm:
- Móng băng, móng cọc, hay móng đơn tùy thuộc vào nền đất.
- Chi tiết về thành phần và cường độ vật liệu.
- Hướng dẫn thi công chi tiết đảm bảo an toàn.
Việc tham khảo hướng dẫn thiết kế móng chuyên sâu sẽ giúp gia chủ hiểu rõ hơn về hiệu quả của các phương án móng xây dựng.
Bản vẽ dầm – sàn – cột
Bản vẽ dầm – sàn – cột là phần không thể thiếu khi xây nhà trọn gói Quy Nhơn. Tài liệu này giúp:
- Quy định kích thước và chủng loại thép sử dụng.
- Định rõ cao độ và liên kết giữa các hạng mục kết cấu.
- Đảm bảo an toàn và độ bền cho toàn bộ công trình.
Những thông số kỹ thuật này được xây dựng dựa trên chuẩn mực xây dựng hiện đại, như tiêu chuẩn kết cấu an toàn trong xây dựng nhằm đảm bảo ngôi nhà đạt được tính ổn định và độ bền vượt trội.
Hồ sơ điện khi thiết kế khi xây nhà trọn gói Quy Nhơn
Hồ sơ điện cung cấp hướng dẫn chi tiết về hệ thống điện hoạt động trong ngôi nhà. Nội dung của hồ sơ điện bao gồm:
- Sơ đồ lắp đặt ổ cắm, công tắc và đèn chiếu sáng.
- Thông tin về các hệ thống điện sinh hoạt và điện điều hòa.
- Cách phân chia tải điện an toàn cho từng khu vực.
Để đảm bảo chất lượng và an toàn, các thông số cần tuân thủ những quy chuẩn khắt khe, như hệ thống điện thông minh cho nhà ở , giúp hạn chế tình trạng quá tải và chập điện.
Hồ sơ cấp – thoát nước hồ sơ thiết kế
Hồ sơ cấp – thoát nước là bộ phận quan trọng giúp hệ thống cấp nước sạch và xử lý nước thải được hoạt động hiệu quả. Hồ sơ này bao gồm:
- Đường ống cấp nước sạch theo tiêu chuẩn.
- Hệ thống thoát nước mưa và nước thải hiệu quả.
- Vị trí các thiết bị hỗ trợ như bồn nước và máy bơm.
Việc thiết kế cẩn thận đường ống và hệ thống thoát nước góp phần giảm thiểu rủi ro ngập úng, như hệ thống cấp thoát nước tiên tiến , đảm bảo cuộc sống của gia đình được an tâm và tiện nghi.
Phần nội thất của hồ sơ thiết kế xây nhà trọn gói

Trong các gói xây nhà trọn gói Quy Nhơn hiện nay, hồ sơ nội thất được tích hợp từ đầu nhằm mang lại sự đồng bộ trong chi phí cũng như phong cách thiết kế.
Nội thất không chỉ dừng lại ở việc lắp đặt mà còn giúp tối ưu không gian sống của bạn. Những điểm chính của hồ sơ nội thất bao gồm:
- Bố trí nội thất cho từng phòng theo tiêu chí công năng.
- Chi tiết kích thước tủ bếp, tủ quần áo, giường ngủ, kệ để đồ.
- Danh sách chủng loại vật liệu và màu sắc chủ đạo.
Các giải pháp nội thất hiện đại, như phương pháp thiết kế nội thất tối ưu không gian , giúp gia chủ kiểm soát ngân sách và tránh mua sắm dư thừa.
Phần dự toán chi tiết của hồ sơ thiết kế xây nhà trọn gói Quy Nhơn

Một bộ hồ sơ xây nhà trọn gói Quy Nhơn chuyên nghiệp tất yếu phải đi kèm với phần dự toán chi tiết, cung cấp các thông tin liên quan đến chi phí thực hiện công trình.
Các nội dung cần có trong phần dự toán chi tiết bao gồm:
- Bảng khối lượng chi tiết từng hạng mục thi công.
- Đơn giá vật tư và nhân công được cập nhật liên tục.
- Tổng mức đầu tư dự kiến cho toàn bộ dự án.
Phương pháp dự toán này như công cụ ước tính chi phí xây dựng chính xác giúp gia chủ có cái nhìn tổng quát về ngân sách cần thiết, tránh được những chi phí phát sinh sau này.
Lợi ích khi có hồ sơ thiết kế đầy đủ trong xây nhà trọn gói Quy Nhơn

Khi sở hữu một bộ hồ sơ thiết kế đầy đủ và chi tiết, gia chủ sẽ nhận được nhiều lợi ích hữu ích:
-
Hạn chế tối đa các phát sinh và sai sót trong thi công.
-
Dễ dàng so sánh, lựa chọn nhà thầu uy tín và chất lượng.
-
Tiếp cận quy trình thi công nhanh chóng và đúng tiến độ.
-
Giúp hoàn thiện ngôi nhà đúng như mong muốn ban đầu.
Việc chuẩn bị đầy đủ hồ sơ thiết kế là cam kết giữa gia chủ và nhà thầu, đảm bảo tiến độ cũng như chất lượng dự án.
Một số nghiên cứu chỉ ra rằng, việc sở hữu hồ sơ thiết kế chi tiết có thể giảm thiểu tới 40% rủi ro phát sinh trong quá trình xây dựng, như được đề cập trong bản tin cập nhật xu hướng xây dựng năm 2023 .
Cuối cùng, nếu bạn đang có ý định xây nhà trọn gói Quy Nhơn, hãy luôn nhớ rằng việc hiểu rõ hồ sơ thiết kế là nền tảng tạo nên thành công cho dự án của bạn.
Đừng ngần ngại tìm kiếm dịch vụ tư vấn xây dựng chuyên nghiệp tại Quy Nhơn để được hướng dẫn chi tiết, từ đó đưa ra quyết định đúng đắn và an toàn cho tương lai.
Sự đầu tư cho một bộ hồ sơ thiết kế hoàn chỉnh chính là bước đầu tư xứng đáng cho một ngôi nhà bền vững và hiện đại.
Mọi Thông Tin Liên Hệ: HOTLINE: 0987. 374. 752 ( Anh Thanh)
CÔNG TY TNHH THIẾT KẾ VÀ XÂY DỰNG HẢI HƯNG

